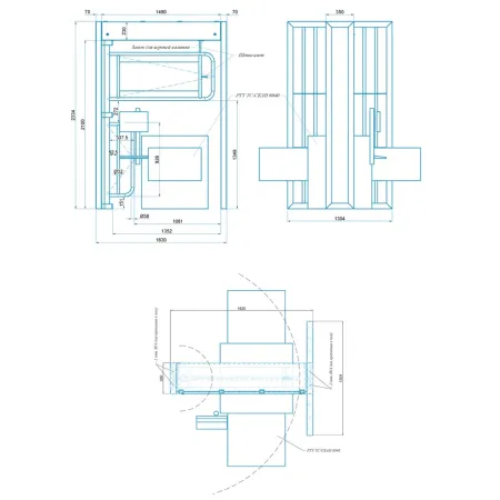
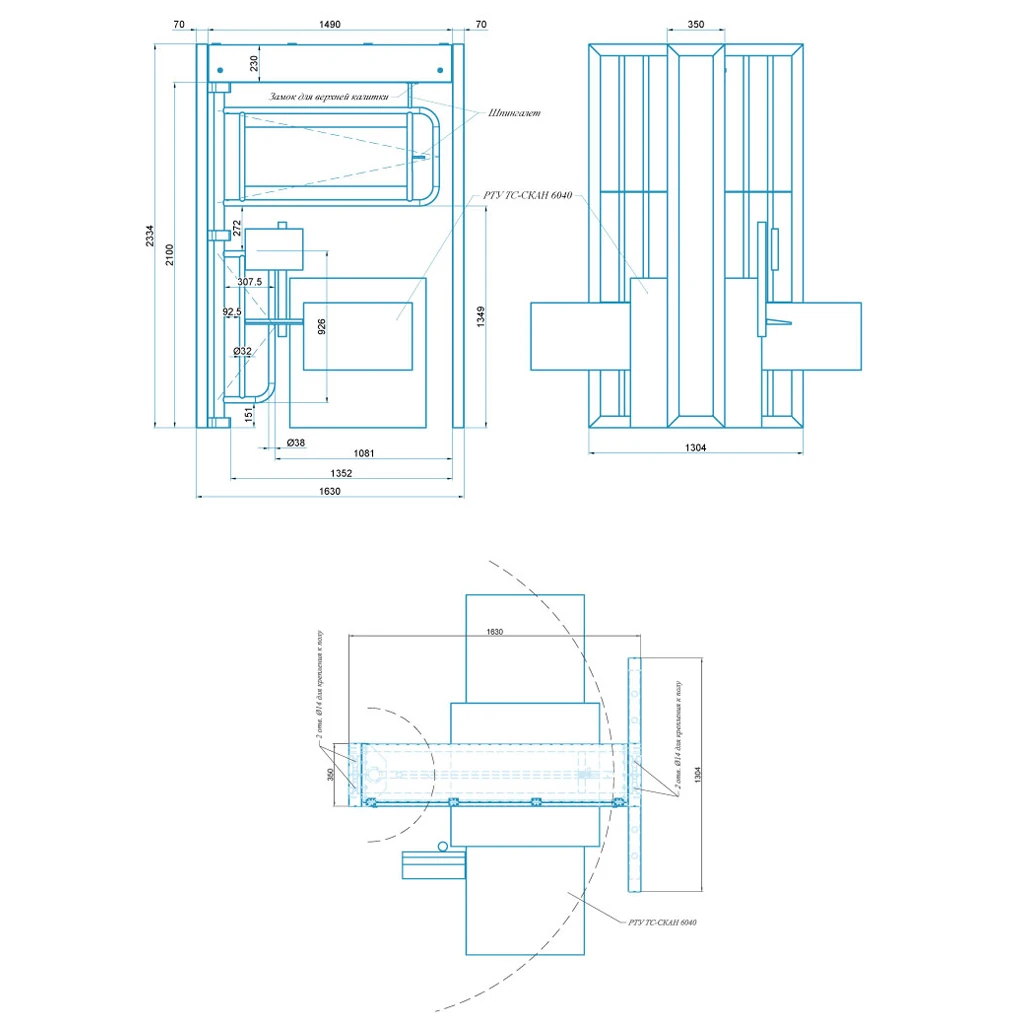
Модуль БЛОКПОСТ СТ 7 серии СПЕКТР Z — это специализированное инженерное решение для интеграции рентгенотелевизионных установок (РТУ) в линии контроля доступа на режимных объектах, в аэропортах, на вокзалах и в административных зданиях. Конструкция разработана с учетом требований безопасности и эргономики, обеспечивая удобное размещение интроскопов типов 50×70 и 60×40, таких как TS-SCAN 6040, Инспектор 55/65 ZX, HI-SCAN 6040a TiX, Astrophysics XIS-6040 и других аналогичных моделей. Модуль позволяет создавать единую зону контроля с турникетами и металлодетекторами, обеспечивая полное перекрытие прохода и эффективную организацию досмотра ручной клади.
Каркас модуля выполнен из нержавеющей стали AISI 304 с толщиной стенок 1,5 мм, что гарантирует высокую прочность, устойчивость к коррозии и долговечность эксплуатации. Степень защиты IP54 обеспечивает надёжную защиту от пыли и влаги, а возможность установки под навесом позволяет использовать устройство как внутри помещений, так и на открытых площадках. Конструкция оснащена верхней калиткой с механическим открыванием при помощи ключа и стандартными крепёжными узлами, полностью совместимыми с турникетами серии СПЕКТР. Это упрощает сборку и обеспечивает единый визуальный стиль проходной зоны.
Модуль БЛОКПОСТ СТ 7 идеально подходит для комплексных систем безопасности, где требуется сочетание пропускного контроля и визуального досмотра багажа. Благодаря продуманной системе соединения турникетов и модулей установка выполняется быстро и не требует дополнительных ограждений. Возможна индивидуальная адаптация под конкретные модели РТУ и требования заказчика по габаритам и дизайну. Конструкция устойчива к температурным перепадам от −40 до +55 °C и влажности до 90 %, что делает модуль надёжным элементом инфраструктуры безопасности даже в сложных климатических условиях.
Особенности
- Предназначен для монтажа рентгенотелевизионных установок (60×40 и 50×70).
- Прочный сварной каркас из нержавеющей стали AISI 304 толщиной 1,5 мм.
- Совместим с моделями интроскопов TS-SCAN 6040, Инспектор 55/65 ZX, HI-SCAN 6040a TiX, Astrophysics XIS-6040 и др.
- Степень защиты IP54 — устойчивость к пыли и влаге.
- Механическое открывание верхней калитки ключом.
- Единая система соединения с турникетами серии СПЕКТР Z.
- Современный дизайн из матовой нержавеющей стали.
- Удобная транспортировочная упаковка, защищающая элементы от повреждений.

Преимущества
- Быстрая установка и интеграция с системами контроля доступа.
- Повышенная прочность и устойчивость к внешним воздействиям.
- Возможность эксплуатации как в помещении, так и на улице под навесом.
- Универсальная компоновка с турникетами и металлодетекторами.
- Поддержка различных моделей РТУ без необходимости доработок конструкции.
- Снижение времени монтажа за счет стандартных креплений.
- Эстетичное и технологичное решение для современных систем безопасности.
Комплексное решение с полноростовым турникетом
Для обеспечения наибольшей безопасности на проходной рекомендуем использовать комплекс из нескольких полноростовых турникетов и модуля для установки РТУ, металлодетекторов, рентгенотелевизионных установок под навесом. Металлодетектор обеспечивает контроль проноса металлических предметов проходящих через него людей. Стационарная рентгеновская установка предназначена для досмотра личных вещей и обследования отдельных предметов (посылок, бандеролей, ручной клади и т. п.) с целью обнаружения в них незаконных вложений, таких как: взрывные устройства, холодное и огнестрельное оружие и другие запрещённые к провозу предметы.
Компоновка турникетов и модулей
Устройства из новой серии турникетов СПЕКТР от БЛОКПОСТ соединяются в единую сеть. Оснащены универсальными люками для быстрого, беспрерывного монтажа, что исключает необходимость в установке дополнительных ограждений при монтаже сразу нескольких турникетов.Для соединения турникетов и модулей серии СПЕКТР необходимо
- Снять защитные крышки с наружной стороны.
- Снять защитные люки с внутренней стороны.
- Сдвинуть турникеты вплотную друг к другу.
- Зафиксировать турникеты между собой с помощью болтов через раму каркаса.
- Закрыть защитные люки с внутренних сторон.
Эксплуатация турникета вне помещений
При использовании модуля для установки РТУ на открытом воздухе необходимо использовать защитный навес. Такие меры предосторожности предохраняют от прямого воздействия влаги и различных атмосферных осадков, обеспечивая долгосрочную стабильную работу устройства. Эксплуатация крыши допускается при температуре окружающего воздуха от -40°С до +55°С и влажности воздуха до 90%.
Недостатки
- Не допускается эксплуатация под прямыми атмосферными осадками без навеса.
- Ручной режим управления — отсутствие автоматизации поворота створки.
- Необходимость точного подбора размеров под используемую модель РТУ.
Технические характеристики:
- Серия: СПЕКТР Z
- Способ поворота штанги/створки: Ручной
- Толщина корпуса (мм): 1,5
- Режимы: Ручной
- Материал корпуса: нержавеющая сталь AISI 304
- Место установки: внутри помещения или снаружи (под навесом)
- Рабочая температура (°C): от −40 до +55 °C
- Влажность: 5 % ~ 90 %
- Степень защищенности (IP): 54
- Внешние габариты (мм) Д×Ш×В: 1304×1630×2334
- Габариты упаковки (мм) Д×Ш×В: 1400×650×2200
- Вес нетто (кг): 150
- Вес брутто (кг): 200
Бренд | Блокпост |
Вид калитки | Полноростовая |
Исполнение | Уличное (под навесом) |
Тип калитки | Механическая |
Направление поворота | Правое |
Материал | Нержавеющая сталь |
Габариты | 350х1574х2334 мм |
Ширина перекрываемого прохода | 1630 мм |
Ширина прохода | 1352 мм |
Высота прохода | 2100 мм |
Вес, кг | 150 |
Рабочая температура | от -40°C до +55°C |
Рабочая влажность | не выше 95% без конденсации |
Класс защиты (IP) | IP54 |
Гарантия | 1 год |
Страна производства | Россия |
Функция «Быстрый заказ» позволяет покупателю не проходить всю процедуру оформления заказа самостоятельно. Вы заполняете форму, и через короткое время вам перезвонит менеджер магазина. Он уточнит все условия заказа, ответит на вопросы, касающиеся качества товара, его особенностей. А также подскажет о вариантах оплаты и доставки.
По результатам звонка, пользователь либо, получив уточнения, самостоятельно оформляет заказ, укомплектовав его необходимыми позициями, либо соглашается на оформление в том виде, в котором есть сейчас. Получает подтверждение на почту или на мобильный телефон и ждёт доставки.
Оформление заказа в стандартном режиме
Если вы уверены в выборе, то можете самостоятельно оформить заказ, заполнив по этапам всю форму.
Заполнение адреса
Выберите из списка название вашего региона и населённого пункта. Если вы не нашли свой населённый пункт в списке, выберите значение «Другое местоположение» и впишите название своего населённого пункта в графу «Город». Введите правильный индекс.
Доставка
В зависимости от места жительства вам предложат варианты доставки. Выберите любой удобный способ. Подробнее об условиях доставки читайте в разделе «Доставка».
Оплата
Выберите оптимальный способ оплаты. Подробнее о всех вариантах читайте в разделе «Оплата»
Покупатель
Введите данные о себе: ФИО, адрес доставки, номер телефона. В поле «Комментарии к заказу» введите сведения, которые могут пригодиться курьеру, например: подъезды в доме считаются справа налево.
Оформление заказа
Проверьте правильность ввода информации: позиции заказа, выбор местоположения, данные о покупателе. Нажмите кнопку «Оформить заказ».
Наш сервис запоминает данные о пользователе, информацию о заказе и в следующий раз предложит вам повторить к вводу данные предыдущего заказа. Если условия вам не подходят, выбирайте другие варианты.
Если Вы хотите узнать об условиях доставки и оплаты, но не желаете о них читать, то Вы можете позвонить любому нашему сотруднику, и он обязательно Вам поможет.
Покупка за безналичный расчет
При оплате за безналичный расчет наш сотрудник свяжется с Вами, чтобы подтвердить заказ и уточнить сроки и адрес доставки. После оформления заказа сотрудник нашей компании вышлет вам счет, по которому необходимо будет произвести оплату.
После оплаты заказа к Вам приедет наш курьер, который доставит ваш заказ.
Самостоятельно забрать заказ из пунктов самовывоза Вы можете после его оплаты по безналичному расчету. Оплата доставки до пунктов выдачи транспортных компаний производится по тарифам выбранной Вами транспортной компании непосредственно в месте получения заказа.
Самовывоз из офиса нашей компании в Зеленограде, так же возможен после предоплаты по безналичному расчету, и предварительной договоренности с менеджером.
Интернет-магазин выполняет доставку любого товара своей собственной Службой доставки.
Стоимость доставки курьером
Стоимость доставки по Москве, Все товары —750 руб., бесплатная доставка от 25000 руб
Стоимость доставки по Московской области рассчитывается для каждого заказа индивидуально и зависит от суммарного веса товаров заказа и удаленности адреса доставки.
Время доставки
Время доставки согласовывается с менеджером Службы доставки, который обязательно свяжется с вами сразу после того, как вы разместите свой заказ.
Для осуществления доставки в регионы России мы пользуемся услугами компаний СДЭК, ЖелДорЭкспедиция, Автотрейдинг, Деловые Линии. В таком случае, указанными кампаниями взимается стоимость доставки по их внутренним тарифам с заказчика при получении товара.
Самовывоз
Забрать товар самостоятельно и абсолютно бесплатно можно только по адресу: Москва, Зеленоград, Панфиловский проспект, дом 10.
Забрать товар самовывозом можно по любому из адресов самовывоза указанных здесь, стоимость доставки до пункта самовывоза рассчитывается для каждого заказа по тарифам транспортных компаний.































