Доводчик Verticlose-2 - наш флагман серии Verticlose. Невероятно многогранный, с отличными характеристиками, этот доводчик является идеальным решением для створок с петлями на 90° и на 180°. Интегрированное предварительное натяжение пружины, плавная регулировка скорости и финальной доводки и крепления Quick-Fix обеспечивают быструю и эффективную установку. Элегантный корпус из алюминия с порошковым напылением, защищающий механизм из высококачественных компонентов, гарантируют долгую жизнь доводчика. Мы рекомендуем Lion-VTC Drill для более практичной установки.
Преимущества
• Элегантный и компактный дизайн
• Доводчик с регулируемыми скоростью и финальной доводкой
• 2 комплекта направляющих в комплекте: для ситуаций 90° и 180°
• Корпус из алюминия с порошковым покрытием, идеально подходит для использования на улице
• Предварительное натяжение итегрировано для упрощения установки
• Сила доводки присутствует на все 180°
• Используйте Lion-VTC Drill для упрощения и ускорения установки
• Крепится намертво благодаря запатентованным креплениям Quick-Fix
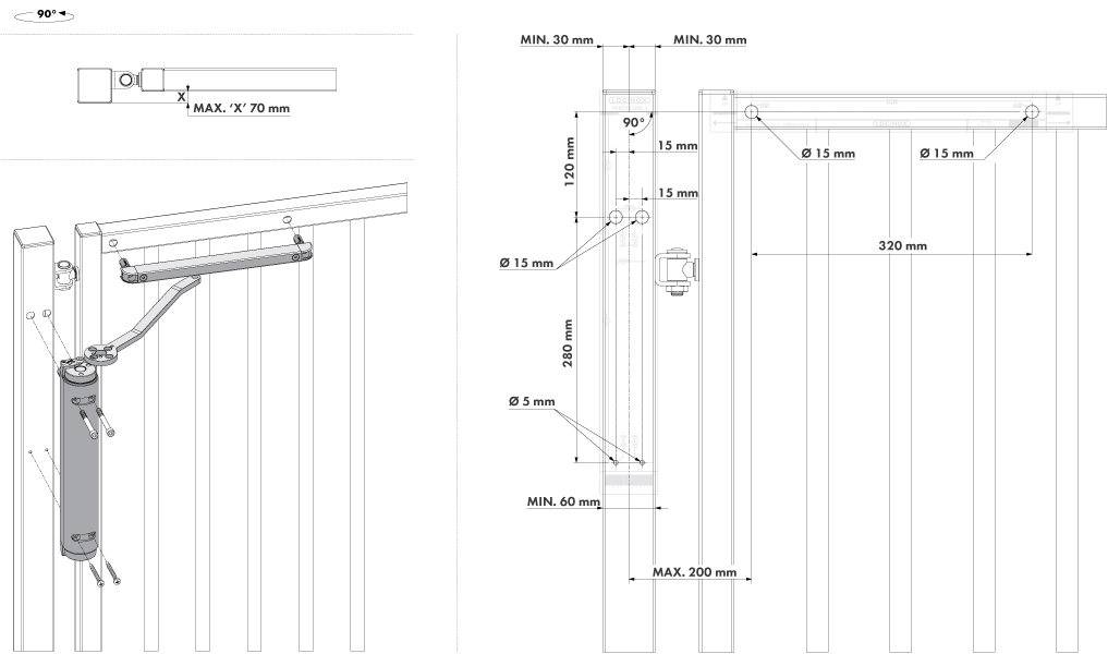
• Для створок весом до 150 кг и шириной до 1,50 м
• Для ворот, открывающихся налево или направо
• Протестировано на 500.000 движений
• Протестировано от -30°C до +70°C

Доводчики Locinox работают на основе механической пружины и запатентованного гидравлического демпфера, благодаря которому доводчик не чувствителен к перепадам температур и идеально работает круглый год. Как силу, так и скорость закрытия можно отрегулировать, а также имеется возможность настроить финальную доводку.
Благодаря запатентованной гидравлической амортизации дверной доводчик Locinox саморегулируется, даже при экстремальных температурах. Это гарантирует стабильное закрытие, без дополнительной настройки дверного доводчика.
Прочная пломба
При переходе ротационного движения в линейное Locinox всегда использует принцип радиального уплотнения. Проникновение грязи и влаги, также как и утечка масла, становятся таким образом невозможными.

Бренд доводчика | Locinox |
Вид товара | Доводчик |
Вид доводчика | Накладной |
Исполнение доводчика | Уличное (автоматическая регулировка) |
Макс. вес двери, кг | 120 |
Макс. ширина двери, мм | 1200 |
Регулировка скорости закрывания клапанами | Есть |
Страна производства | Бельгия |
Функция «Быстрый заказ» позволяет покупателю не проходить всю процедуру оформления заказа самостоятельно. Вы заполняете форму, и через короткое время вам перезвонит менеджер магазина. Он уточнит все условия заказа, ответит на вопросы, касающиеся качества товара, его особенностей. А также подскажет о вариантах оплаты и доставки.
По результатам звонка, пользователь либо, получив уточнения, самостоятельно оформляет заказ, укомплектовав его необходимыми позициями, либо соглашается на оформление в том виде, в котором есть сейчас. Получает подтверждение на почту или на мобильный телефон и ждёт доставки.
Оформление заказа в стандартном режиме
Если вы уверены в выборе, то можете самостоятельно оформить заказ, заполнив по этапам всю форму.
Заполнение адреса
Выберите из списка название вашего региона и населённого пункта. Если вы не нашли свой населённый пункт в списке, выберите значение «Другое местоположение» и впишите название своего населённого пункта в графу «Город». Введите правильный индекс.
Доставка
В зависимости от места жительства вам предложат варианты доставки. Выберите любой удобный способ. Подробнее об условиях доставки читайте в разделе «Доставка».
Оплата
Выберите оптимальный способ оплаты. Подробнее о всех вариантах читайте в разделе «Оплата»
Покупатель
Введите данные о себе: ФИО, адрес доставки, номер телефона. В поле «Комментарии к заказу» введите сведения, которые могут пригодиться курьеру, например: подъезды в доме считаются справа налево.
Оформление заказа
Проверьте правильность ввода информации: позиции заказа, выбор местоположения, данные о покупателе. Нажмите кнопку «Оформить заказ».
Наш сервис запоминает данные о пользователе, информацию о заказе и в следующий раз предложит вам повторить к вводу данные предыдущего заказа. Если условия вам не подходят, выбирайте другие варианты.
Если Вы хотите узнать об условиях доставки и оплаты, но не желаете о них читать, то Вы можете позвонить любому нашему сотруднику, и он обязательно Вам поможет.
Покупка за безналичный расчет
При оплате за безналичный расчет наш сотрудник свяжется с Вами, чтобы подтвердить заказ и уточнить сроки и адрес доставки. После оформления заказа сотрудник нашей компании вышлет вам счет, по которому необходимо будет произвести оплату.
После оплаты заказа к Вам приедет наш курьер, который доставит ваш заказ.
Самостоятельно забрать заказ из пунктов самовывоза Вы можете после его оплаты по безналичному расчету. Оплата доставки до пунктов выдачи транспортных компаний производится по тарифам выбранной Вами транспортной компании непосредственно в месте получения заказа.
Самовывоз из офиса нашей компании в Зеленограде, так же возможен после предоплаты по безналичному расчету, и предварительной договоренности с менеджером.
Интернет-магазин выполняет доставку любого товара своей собственной Службой доставки.
Стоимость доставки курьером
Стоимость доставки по Москве, Все товары —750 руб., бесплатная доставка от 25000 руб
Стоимость доставки по Московской области рассчитывается для каждого заказа индивидуально и зависит от суммарного веса товаров заказа и удаленности адреса доставки.
Время доставки
Время доставки согласовывается с менеджером Службы доставки, который обязательно свяжется с вами сразу после того, как вы разместите свой заказ.
Для осуществления доставки в регионы России мы пользуемся услугами компаний СДЭК, ЖелДорЭкспедиция, Автотрейдинг, Деловые Линии. В таком случае, указанными кампаниями взимается стоимость доставки по их внутренним тарифам с заказчика при получении товара.
Самовывоз
Забрать товар самостоятельно и абсолютно бесплатно можно только по адресу: Москва, Зеленоград, Панфиловский проспект, дом 10.
Забрать товар самовывозом можно по любому из адресов самовывоза указанных здесь, стоимость доставки до пункта самовывоза рассчитывается для каждого заказа по тарифам транспортных компаний.















