СКАТ ШТ-5425А предназначен для размещения охранно-пожарного, промышленного, коммутационного и другого оборудования с целью обеспечения его защиты от вредных атмосферных воздействий и перепадов температуры.
Термошкаф имеет герметичное исполнение и рассчитан на круглосуточный режим работы на открытом воздухе и в помещениях с неблагоприятными условиями эксплуатации (повышенным уровнем влажности, содержания пыли и вредных веществ), при температуре окружающей среды от -65 °C до +50 °C и относительной влажности до 100% (при 25 °C).
Климатическое исполнение изделия соответствует УХЛ 1 ГОСТ 15150.
Особенности СКАТ ШТ-5425А
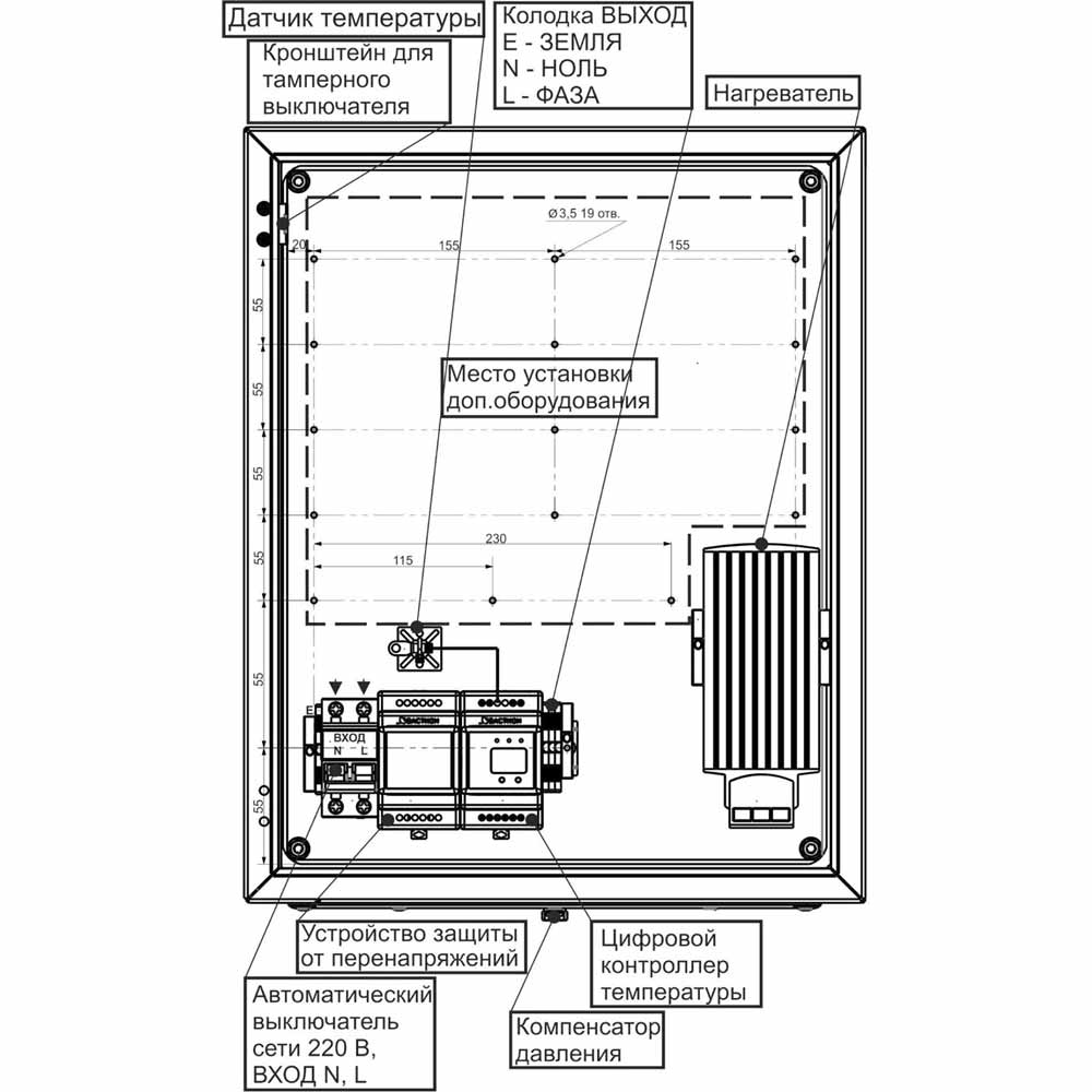
• защита оборудования от влияния факторов внешней среды по классу защиты IP66;
• подогрев шкафа с помощью нагревателя;
• управление нагревателем посредством автоматики управления климатом;
• защита от холодного пуска и перегрева оборудования;
• настройка поддерживаемой внутри шкафа температуры, а также температуры срабатывания защиты от холодного пуска;
• индикация основных параметров (температура в шкафу, обогрев, авария);
• выдача информационного сообщения типа «сухой контакт» при аварийных ситуациях и при вскрытии шкафа;
• защита установленного оборудования мощностью до 1000 ВА от грозовых наводок и импульсных перенапряжений благодаря встроенному модулю УЗИП;
• защита от КЗ и перегрузки посредством двухполюсного автоматического выключателя;
• размещение дополнительного оборудования на рейке с возможностью выбора расположения благодаря дополнительным отверстиям на шасси.
Преимущества СКАТ ШТ-5425А
• микропроцессорное управление
• температурный диапазон -65 — +50°С
• информирование об аварии и вскрытии
• точное поддержание температуры
• настройка поддерживаемой температуры
• защита от холодного пуска и перегрева
• класс защиты IP66
• гарантия 5 лет
Характеристики:
• Напряжение питающей сети ~220 В, частотой 50 Гц с пределами изменения, В: 170…250
• Максимальный ток нагрузки А, не более: 5
• Характеристики нагревателя:
- напряжение питания, В: 230
- мощность, Вт: 60
• Диапазон поддерживаемой температуры включения нагревателя (режим «H»), °C: -20…+15
• Диапазон поддерживаемой температуры отключения нагрузки по охлаждению (режим «L»), °C: -30…+5
• Температура отключения нагрузки по перегреву, °C: +70
• Точность установки температуры, °C: ±2
• Характеристики клеммной колодки «АВАРИЯ»:
- напряжение, не более, В: 60
- ток, не более, мА: 50
• Габаритные размеры ШхВхГ, не более, мм:
- без упаковки: 400х510х260
- в упаковке: 415х275х515
• Масса, НЕТТО (БРУТТО), не более, кг: 13,3 (14,3)
• Материал шкафа корпус сталь 1,2 мм : крышка сталь 1,5 мм
• Диапазон рабочих температур, °С: -65…+50
• Климатическое исполнение: УХЛ 1
• Относительная влажность воздуха при 25 °С, %, не более: 100
• Степень защиты оболочкой по ГОСТ 14254-2015: IP66
Бренд | Скат |
Вид оборудования | Шкаф электротехнический |
Тип монтажа | Настенный |
Ширина, мм | 400 |
Высота, мм | 510 |
Глубина, мм | 260 |
Термостабилизация | Есть |
Напряжение питания | 170...250 В |
Потребляемая мощность, макс. | 60 Вт |
Потребляемый ток, макс. | 5 А |
Вес, кг | 13.3 |
Рабочая температура | от -65°C до +50°C |
Рабочая влажность | до 100% |
Класс защиты (IP) | IP66 |
Гарантия | 5 лет |
Страна производства | Россия |
Функция «Быстрый заказ» позволяет покупателю не проходить всю процедуру оформления заказа самостоятельно. Вы заполняете форму, и через короткое время вам перезвонит менеджер магазина. Он уточнит все условия заказа, ответит на вопросы, касающиеся качества товара, его особенностей. А также подскажет о вариантах оплаты и доставки.
По результатам звонка, пользователь либо, получив уточнения, самостоятельно оформляет заказ, укомплектовав его необходимыми позициями, либо соглашается на оформление в том виде, в котором есть сейчас. Получает подтверждение на почту или на мобильный телефон и ждёт доставки.
Оформление заказа в стандартном режиме
Если вы уверены в выборе, то можете самостоятельно оформить заказ, заполнив по этапам всю форму.
Заполнение адреса
Выберите из списка название вашего региона и населённого пункта. Если вы не нашли свой населённый пункт в списке, выберите значение «Другое местоположение» и впишите название своего населённого пункта в графу «Город». Введите правильный индекс.
Доставка
В зависимости от места жительства вам предложат варианты доставки. Выберите любой удобный способ. Подробнее об условиях доставки читайте в разделе «Доставка».
Оплата
Выберите оптимальный способ оплаты. Подробнее о всех вариантах читайте в разделе «Оплата»
Покупатель
Введите данные о себе: ФИО, адрес доставки, номер телефона. В поле «Комментарии к заказу» введите сведения, которые могут пригодиться курьеру, например: подъезды в доме считаются справа налево.
Оформление заказа
Проверьте правильность ввода информации: позиции заказа, выбор местоположения, данные о покупателе. Нажмите кнопку «Оформить заказ».
Наш сервис запоминает данные о пользователе, информацию о заказе и в следующий раз предложит вам повторить к вводу данные предыдущего заказа. Если условия вам не подходят, выбирайте другие варианты.
Если Вы хотите узнать об условиях доставки и оплаты, но не желаете о них читать, то Вы можете позвонить любому нашему сотруднику, и он обязательно Вам поможет.
Покупка за безналичный расчет
При оплате за безналичный расчет наш сотрудник свяжется с Вами, чтобы подтвердить заказ и уточнить сроки и адрес доставки. После оформления заказа сотрудник нашей компании вышлет вам счет, по которому необходимо будет произвести оплату.
После оплаты заказа к Вам приедет наш курьер, который доставит ваш заказ.
Самостоятельно забрать заказ из пунктов самовывоза Вы можете после его оплаты по безналичному расчету. Оплата доставки до пунктов выдачи транспортных компаний производится по тарифам выбранной Вами транспортной компании непосредственно в месте получения заказа.
Самовывоз из офиса нашей компании в Зеленограде, так же возможен после предоплаты по безналичному расчету, и предварительной договоренности с менеджером.
Интернет-магазин выполняет доставку любого товара своей собственной Службой доставки.
Стоимость доставки курьером
Стоимость доставки по Москве, Все товары —750 руб., бесплатная доставка от 25000 руб
Стоимость доставки по Московской области рассчитывается для каждого заказа индивидуально и зависит от суммарного веса товаров заказа и удаленности адреса доставки.
Время доставки
Время доставки согласовывается с менеджером Службы доставки, который обязательно свяжется с вами сразу после того, как вы разместите свой заказ.
Для осуществления доставки в регионы России мы пользуемся услугами компаний СДЭК, ЖелДорЭкспедиция, Автотрейдинг, Деловые Линии. В таком случае, указанными кампаниями взимается стоимость доставки по их внутренним тарифам с заказчика при получении товара.
Самовывоз
Забрать товар самостоятельно и абсолютно бесплатно можно только по адресу: Москва, Зеленоград, Панфиловский проспект, дом 10.
Забрать товар самовывозом можно по любому из адресов самовывоза указанных здесь, стоимость доставки до пункта самовывоза рассчитывается для каждого заказа по тарифам транспортных компаний.

















